How to print a poster
Introduction
In my work I used to scale up blueprints, project drawings and plans. I’m a Site Manager in a small construction
company.
Usually I print them and hang on the wall in order to look over in details. Just right now we get
start the reconstruction of apartment in a suburban apartments’ complex. I’ve got a floor plan. This is a large
sheet of paper which is displayed 3 two-storey apartments. I need a plan only apartment in the middle of building.
I’m going to scale it up and print like a huge poster. It helps me imagine what the
apartment would look like and what we should do.
Preparation
At first I’m going to scan part of blueprint with help of regular flatbed scanner. Blueprint is very large, almost size of my desk. Fortunately, the required part of drawing can be fitted into the scanner’s work area. My old scanner HP 4670 could be very good for such purposes, it has transparent work area and can scan even walls. But it was broken and I should use another one. For scanning we can use priScanner Express. priScanner Express has convenient large preview window, which is very good for my task. When scanning in blueprints it is very hard to align document properly, so image will be created with a slant. In my particular case walls are not horizontal or vertical. Deskew feature ( image rotate ), will fix this problem.


You can see an example of scanned documents above. Walls on the images are perfectly horizontal or vertical.
There are several ways to open an image with priPrinter. One easy way is to grab the image file, drag it into priPrinter, and drop it there. Another way will be in using Open dialog from File menu. The one note to using this method is that you need to have priPrinter already up and running. Of course you can open image in MS Paint or Photoshop and print image to priPrinter. I’ve been using drag&drop. Image below shows how priPrinter looks after that.

Ok, my floor plan
is opened and with my current settings will be printed on the single A4 paper. In your case it could Letter or any
other paper size. To enter the Poster mode press the icon as shown right here (you can also
select Poster mode with the ‘F8’ keyboard shortcut).
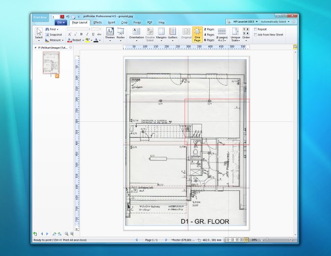
I’d like to have a poster of 600 x 800 mm in size approximately. This size can be specified in priPrinter directly and priPrinter should calculate number of pages. Another way will be in specifying number of pages. I’m going to use last method. Poster can be made of 8 paper sheets – two sheets in horizontal direction and four in vertical. Each sheet is A4 size, landscape orientation. Poster size will be 800x 580 mm. Exact size depends on printer margins. 800 x 580 mm is almost perfect.
Right now I’m going to print only the ground floor, first floor can be processed in the same way.

We may want to check important parts of our drawing. It’s good to keep them away of cut lines. Of course this is not always possible and not that important. At least we may try move vertical walls away of vertical cut lines. Same with horizontal walls. In order to do that, we can move page across poster surface. However it is good to have some lines or figures on the border of paper sheets. It helps to attach sheets of paper together.
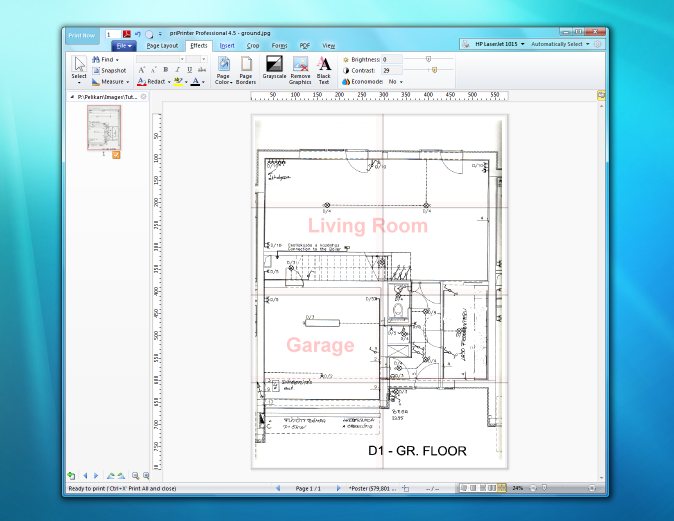
Everything is good with drawing itself, but I need to put some comments. I select Insert tab, there I can create text markups. For instance I can highlight Living Room and Garage. Also it can be helpful to outline phone and electric wires, water pipes, etc.

Printing
We are almost finished all preparations and may print. However I’ve just found that drawing has gray background. Of course it was better to fix this problem in image editor in very beginning. I will try to fix it now, with help of adjustments controls. Let’s go to Effects tab and play with Brightness and Contrast in order to improve image.

Gray background is almost gone, it’s much better now. At least I think so. We may try to remove left and right gray borders, but this is not critical for me and makes this drawing looks live.
GO! Click the Print Now button on the priPrinter‘s main window or select Print from File menu. We should receive 8 sheets with parts of our poster. Use the scissors to cut borders and glue to paste them together.

Half is done, rest sheets are waiting to be attached to poster. In case if we did something wrong, we can print required part again. In order to do that, right click on required sheet and select “Print this part or poster”.
Ok, this is it. Finished poster is on the photo below.

Usually printer shifts each a page a bit. As result, edges of poster are jagged. We may cut borders a bit with scissors. In that case, it may be reasonable to increase margins in advance. However, I’m fine with that.
priPrinter allows to select pages to print in print preview pane.
This tutorial was initially prepared by priPrinter user.
Designated trademarks, brands and art are
the property of their respective owners.